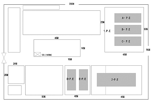
Layout - Factory 1

Tower Crane
Crane-150 ton(1), 250 ton(2)-




Layout
- Factory 2

Yard - Factory 2
Crane(120 ton),Crane(250 ton)